Rif: IMMO-126027719
CIVITANOVA MARCHE
MACERATA
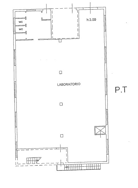
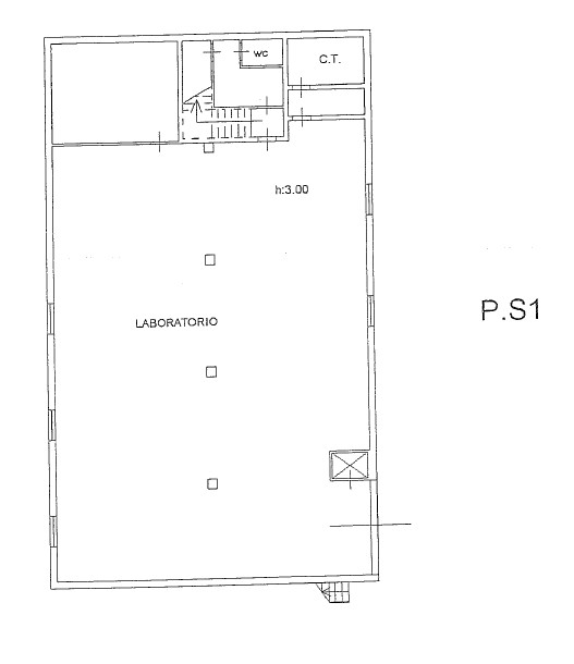
Scopri questo fabbricato cielo-terra in ottimo stato generale, libero sui quattro lati e situato in una posizione strategica. Con ampi spazi di manovra e parcheggio, questo immobile si sviluppa su tre livelli, offrendo un'ottima versatilità per diverse attività. Al piano seminterrato trovi un laboratorio artigianale, attualmente affittato con una rendita annua di 8.000Eu..
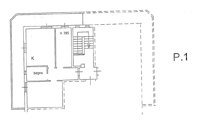
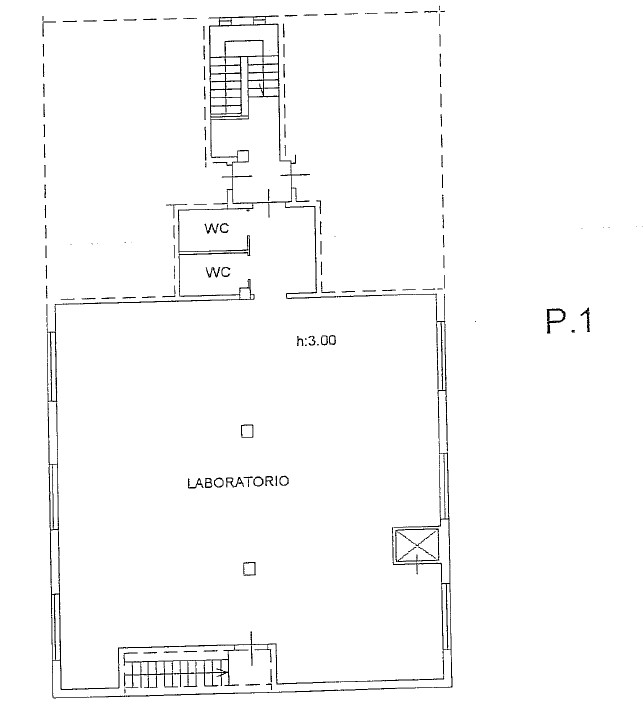
Il piano terra e il primo piano ospitano ulteriori laboratori, uffici e un'abitazione, garantendo una rendita annua totale di 32.000Eu.. Gli inquilini sono noti per la loro puntualità nei pagamenti, rendendo questo locale un investimento sicuro nel tempo. La gestione del fabbricato è corretta, mantenendo sempre la funzionalità e il decoro degli spazi.
Con 1.125 m² commerciali, quattro bagni, riscaldamento e aria condizionata, questo locale è ideale per chi cerca un reddito certo e duraturo. Non perdere l'occasione di investire in un immobile che promette stabilità e rendimento! Contattaci per maggiori informazioni e per organizzare una visita.
Il piano terra e il primo piano ospitano ulteriori laboratori, uffici e un'abitazione, garantendo una rendita annua totale di 32.000Eu.. Gli inquilini sono noti per la loro puntualità nei pagamenti, rendendo questo locale un investimento sicuro nel tempo. La gestione del fabbricato è corretta, mantenendo sempre la funzionalità e il decoro degli spazi.
Con 1.125 m² commerciali, quattro bagni, riscaldamento e aria condizionata, questo locale è ideale per chi cerca un reddito certo e duraturo. Non perdere l'occasione di investire in un immobile che promette stabilità e rendimento! Contattaci per maggiori informazioni e per organizzare una visita.
Consistenze
| Descrizione | Superficie | Sup. comm. |
|---|---|---|
| Principali | ||
| Laboratorio - seminterrato | 375 Mq | 375 Mqc |
| Laboratorio - piano terra | 375 Mq | 375 Mqc |
| Laboratorio - 1° piano | 225 Mq | 225 Mqc |
| Ufficio - 1° piano | 75 Mq | 75 Mqc |
| Immobile - 1° piano | 75 Mq | 75 Mqc |
| Totale | 1.125 Mqc | |
